Casa taperera

Superficies:

Superficie de parcela: 1.061 m².
Superficie construida de vivienda: 234 m²

Distribución:

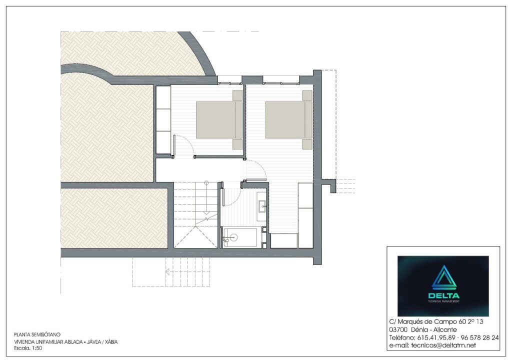
Vestíbulo | Aseo de cortesía| Salón-comedor | Cocina | Cuatro dormitorios | Vestidor | Tres baños

Vivienda construida en la década de los ochenta que presenta características arquitectónicas y estéticas propias de la década que han quedado anticuadas en comparación con las tendencias actuales.

Arquitectónicamente la vivienda no tiene una comunicación cómoda entre plantas ya que dispone de dos escaleras de caracol y no existe una comunicación interna y continua entre plantas.

Dispone de espacios segmentados y cerrados que no permite un flujo continuo. Este tipo de espacios junto con las pequeñas aberturas de las fachadas y los techos continuos de escayola crea una casa oscura

Estéticamente, los materiales los colores, la iluminación y las defensas son propios de la época de su construcción.

Los espacios exteriores también requieren una actualización complementando la renovación de la vivienda.

Para lograr un equilibrio armonioso entre lo antiguo y lo nuevo, preservando la identidad de la vivienda mientras se le proporciona una actualización contemporánea seguimos los siguientes pasos:

  • Modernización de la distribución espacial revisando la distribución considerando espacios más abiertos.
  • Actualización de los materiales, sustituyendo materiales antiguos por opciones más actuales
  • Cambio de colores y texturas utilizando una paleta de colores contemporánea 
  • Modernización de la iluminación aprovechando la luz natural 
  • Instalación de sistemas de energía renovables.
  • Diseñamos el espacio exterior adaptádonos a las nuevas líneas geométricas de la vivienda.

Casa Taperera

La reforma de una vivienda tradicional implica actualizar y renovar su diseño y decoración sin perder completamente su esencia original.

Con la combinación de elementos antiguos y nuevos en la vivienda logramos un diseño único y equilibrado que refleja tanto la historia como la modernidad

Se conservan los elementos más representativos que le aportan carácter a la vivienda

¡Construyamos juntos tu próximo proyecto con Denta TM! Contáctanos hoy para obtener una consulta gratuita.

EMPLAZAMIENTO PARCELA

PLANTA SEMISÓTANO

PLANTA BAJA

ALZADO NORTE

Me interesa la promoción

Ir al contenido